Bilocale in vendita

Roma, Via Augusto Conti
€ 55.000
2 locali 2 locali
52 Mq 52 Mq
1 bagno 1 bagno

Bilocale in vendita

Roma, Via Augusto Conti

Descrizione annuncio

Monte Mario - Via Augusto Conti -

VENDUTO - NUDA PROPRIETA'

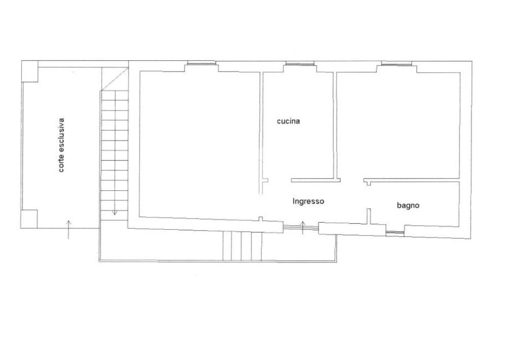
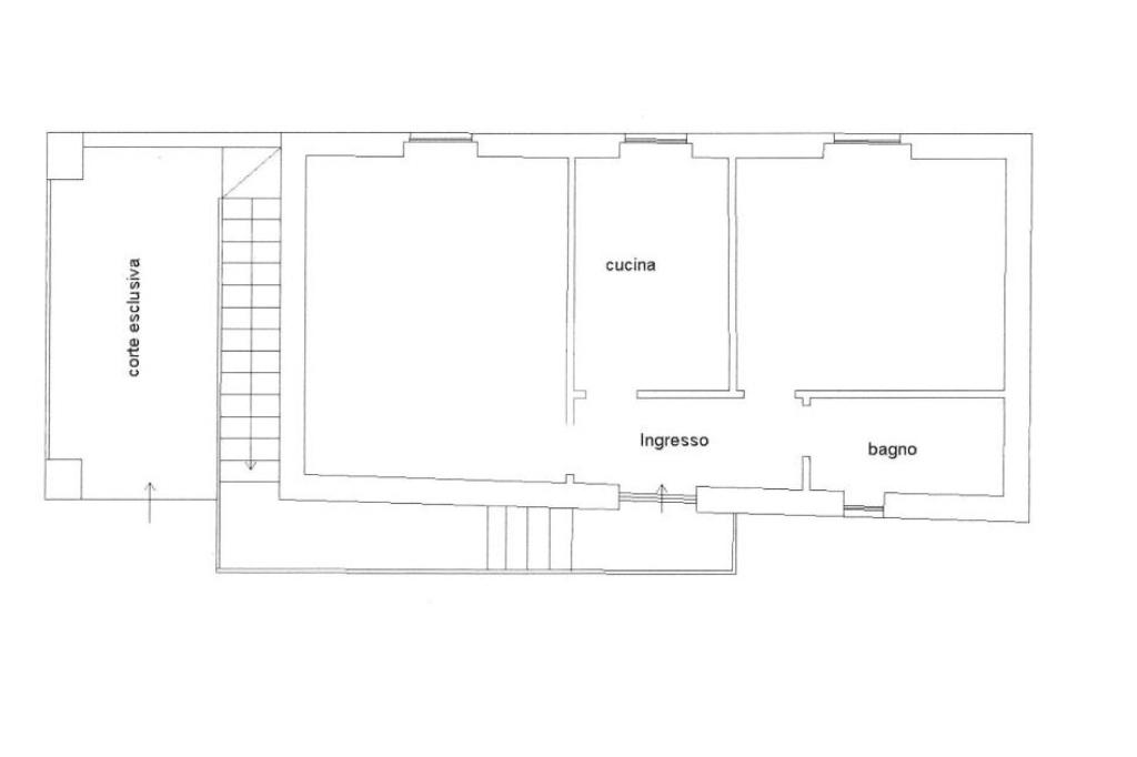
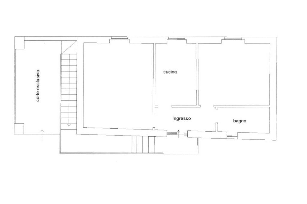
VENDUTO-All'interno di una piccola palazzina di soli 2 piani senza spese di condominio, proponiamo in vendita un'ottima opportunità immobiliare in NUDA PROPRIETA' (usufruttuario di età 80 anni). L'immobile di circa 52 mq è posto al 1° piano di una palazzina non dotata di ascensore ed internamente è composto da soggiorno, cucina abitabile, camera matrimoniale, bagno, un balcone ed un patio di circa 15 mq. Dispone di infissi in vetro, pavimenti dell'epoca ed il riscaldamento autonomo. L'appartamento si presenta da ristrutturare totalmente, foto non disponibili.

Offriamo servizio gratuito di consulenze finanziarie personalizzate tramite la Kiron, partner del gruppo Tecnocasa.

Ogni agenzia ha un proprio titolare ed è autonoma - Le presenti informazioni, le planimetrie e le foto pubblicate non costituiscono elemento contrattuale.

Mostra tutto

Nelle vicinanze

Trasporto pubblico Trasporto pubblico
stazione di Roma Monte Mario
stazione di Roma Monte Mario
540 m
Roma San Filippo Neri
Roma San Filippo Neri
650 m
Conti A./Dati
Conti A./Dati
60 m
Nostra Signora di Guadalupe
Nostra Signora di Guadalupe
110 m
Ricariche auto elettriche Ricariche auto elettriche
Axpo - Stazio
3,0 Km
Scuole Scuole
Scuola elementare
260 m
Don Orione
320 m
Istituto Tecnico Industriale Enrico Fermi
390 m
Scuola Giuseppe Taverna
620 m
Scuola Maria Grazia Amici e Filomena di Meglio
690 m
Farmacia Farmacia
Nocerino
20 m
Silvestrini
290 m
Farmacia Padre Pio
360 m
Farmacia
780 m
doc*Cortina
1,1 Km
Ospedali Ospedali
Presidio Ospedaliero San Filippo Neri
900 m
Hospice Villa Speranza
1,4 Km
Policlinico Universitario Agostino Gemelli
1,5 Km
Ospedali
1,8 Km
Complesso Integrato Columbus
2,0 Km
Supermercati Supermercati
Metà
110 m
tigre amico
190 m
Supermercati
390 m
Tuodì
480 m
Carrefour
500 m
Negozi Negozi
Negozi
10 m
drogheria Alesse
180 m
Panificio Kumera
210 m
Tigre
230 m
Tabaccheria
280 m
Bar Bar
Bar Thouar
180 m
Bar
210 m
l'amico
270 m
Truzzi
900 m
Lory
910 m
Ristoranti Ristoranti
Losteria carolina
190 m
Sole
600 m
La Molisanella
610 m
cinapoli
730 m
Ristoranti
790 m
Mostra tutto

Caratteristiche

Rif.:
61202073
Piano:
1 (Piano basso)
Balconi:
1
Camere da letto:
1
Arredamento:
Assente
Condizionamento:
Assente
Mostra tutto
Prezzo Prezzo
€ 55.000
Rata mutuo Rata mutuo
€ 261 / mese
Spese annue Spese annue
€ 1
Proponi il tuo prezzoProponi il tuo prezzo

Classe Energetica

G
G
G
G
G
G
G
G
G
EP globale non rinnovabile:
175.00 kW h/m² anno
EP globale rinnovabile:
175.00 kW h/m² anno
EP invernale del fabbricato:
EP estiva del fabbricato:
Anno di costruzione:
1950
Riscaldamento:
Autonomo
Tipo impianto:
A radiatori
Tipo alimentazione:
Metano

Ti interessa visionare l'immobile?

Fissa un appuntamento  Fissa un appuntamento

Richiedi informazioni

Clicca su Leggi per aprire l'informativa
* Questi campi sono obbligatori

Calcola il tuo mutuo

Semplice e senza impegno
Anticipo

( % )
Mutuo

( % )

pochi semplici passi

inserisci i tuoi dati
Questionario completato
Grazie per aver richiesto un appuntamento senza impegno con un nostro Consulente del Credito e Assicurativo.

Hai inserito correttamente tutti i dati necessari e a breve riceverai una e-mail con un link da convalidare per inviare i tuoi dati.
Affiliato
Immobiliare Monte Mario Centro Srl
P.zza Nostra Signora di Guadalupe, 7 00135 Roma (RM)

Il nostro staff


  • Mirko Codianni
    Responsabile

  • Barbara Menichini
    Coordinatrice

  • Alessandro Guastalegname
    Affiliato
P.zza Nostra Signora di Guadalupe, 7 00135 Roma (RM)
Zona: Montemario
Mostra su mappa
Orari: Lunedì - Venerdì 9.00-19.30 Sabato 9.00/13.00 - Sabato pomeriggio su appuntamento.
Affiliato
Immobiliare Monte Mario Centro Srl
P.zza Nostra Signora di Guadalupe, 7 00135 Roma (RM)

2026 Tecnocasa Franchising S.p.A. - P. IVA 08365160152 - Via Monte Bianco 60/A 20089 Rozzano (MI). Ogni agenzia ha un proprio titolare ed è autonoma. Privacy policy | Policy utilizzo | Cookie policy